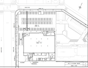
・<11月予定>アルク井口明神店(仮称)
広島市西区井口明神一丁目10 番131
敷地面積 5,000 ㎡
延床面積 2,314 ㎡
店舗面積 1,538 ㎡
営業時間 午前9 時00 分~午後10 時00 分
駐車場収容台数 48 台(来客用)
駐輪場収容台数 50 台
大店立地法届出予定 2014年 3 月
建築着工予定 2014年 4 月
竣工予定 2014年11 月
開店予定 2014年11 月
紹介日 2013/12/23(part1記事12/23)
アルク井口明神店(仮称)(広島市)2014年11月オープン予定(part1)

この記事が気に入ったら
いいね または フォローしてね!
- 【この記事よりも新しい記事があります】ピアゴ尾西店(一宮市)2014年1月19日閉店して建替予定で売り尽くしセール開催中
- 【この記事よりも新しい記事があります】バロー下石店(おろし)[従業員募集名称: 笠原下石店](岐阜県土岐市)2014年2月22日オープン予定(part5)やはり地番通りのこの場所で造成工事着工。例の候補地は未だ未着工(笑)
食彩品館.jp最新記事
-
食彩品館.jpの新規記事は別サイトで更新されています。過去記事は当サイトで閲覧可能です。2024年9月3日 -
★本日のまとめページ。まずはここからスタート。“開店・旅行・美味検索の窓口”食彩品館.jp,2024年9月2日紹介。ローソンS名古屋シミズ富国生命ビル,ファミリーマート舞洲,焼肉きんぐ小牧店・米子店,ステーキ定食松牛八王子店,シャトレーゼ越谷せんげん台店,本日は,旧暦7月30日,赤口,己巳,七赤金星,宝くじの日,くず餅の日,温泉の資格,日本温泉科学会,温泉地域学会,関東の温泉の古画像,【本日午前追記】→タチヤ神領店,オーケー西宮北口店,ラムー日吉津店,ドットエスティイオンモール各務原インター,わくわく広場志都美駅付近商業施設,クスリのアオキ三園平店,サンドラッグ豊岡7条店・恵庭大町店,調剤薬局ツルハドラッグ八戸小中野店・たまプラーザ駅前店・尼崎東園田店・釧路富士見店,クスリのアオキ松山高岡店ププレひまわり薬局グラン春日,クリエイトSD南林間ヒメシャラ通り店,クリエイトエスディー松戸馬橋店,ゲオモバイルベイシア電器市原八幡店,れんげ食堂Toshuぷらむろーど杉田店(東秀),MongTeng(Una casita(おなかすいた),Zoffイオンモール鹿児島店,只今、食彩品館.jp工事中の案内。2024年9月2日 -
★本日のまとめページ。まずはここからスタート。“開店・旅行・美味検索の窓口”食彩品館.jp,2024年9月1日紹介。あつた nagAya(第1期),麺場田所商店横浜都岡店,FIT365柏崎柳田,ワッツウィズ能登川佐野フレンドマート店・開成マックスバリュ店・武町タイヨー店,おたからや葛生店・スーパーマルサン桶川店・50号広沢町店・マルナカ美沢店・長岡美沢店・昭島駅南口店・長居駅前店,本日は,旧暦7月29日,大安,戊辰,八白土星,釜飯の日,あずきの日,キウイの日,ギリシャヨーグルトの日,おわら風の盆,冬の東北秘湯,乳頭温泉鶴の湯,中崎山荘奥飛騨の湯(岐阜県高山市)訪問記,2024年9月1日 -
中崎山荘奥飛騨の湯(岐阜県高山市)単純硫黄泉の魅力。源泉の成分変化。温泉の在野研究。竹製温泉冷却装置「湯雨竹(ゆめちく)」,成分薄目でも還元力バツグンの単純硫黄泉。新穂高温泉観光協会,温泉科学会員,温泉地域学会,温泉ソムリエ分析書マスター,ラーメンと蕎麦実食記,(ラーメンソムリエ資格)2024年9月1日 -
カネスエ浜松中郡店(仮称,浜松市)2025年4月30日オープン予定で大規模小売店舗立地届出,スーパーマーケット,2024年8月31日 -
★本日のまとめページ。まずはここからスタート。“開店・旅行・美味検索の窓口”食彩品館.jp,2024年8月31日紹介。ライフ芦屋呉川町店,ベルク中青木店,ドラッグイレブン糸満潮平店,本日は,旧暦7月28日,仏滅,丁卯,九紫火星,二百十日,冬の沖縄八重山諸島5島めぐり,具志堅用高像,大衆うなぎ うなまる(愛知県安城市)ニホンウナギ実食記,【本日午前追記】→スーパーマーケットバロー登美ヶ丘店,Vdrug志染駅前クレストヒルズ薬局,ビッグエー朝霞朝志ヶ丘店・草加中根店,ワークマンプラス甲西店,WORKMAN Plus埼玉江南店,くら寿司札幌新琴似店,ゴンチャ枚方モール店,タリーズコーヒー京阪京橋駅片町口,チャンカレダイナー,松屋苅田店,ステーキ定食松牛三鷹店,松のや大垣島里店,大起水産回転寿司枚方モール店,セブンイレブン文京本駒込2丁目・東京ツインパークス・千代田富士見1丁目・茅ヶ崎高砂通り,ローソン堺翁橋・鹿児島皷川町,KOMEHYO枚方モール,FIT-EASY羽島竹鼻店・片江店,セカンドストリート高槻庄所店・長尾センタープラザ店,DAISOビックカメラ新宿東口店,Standard Products ビックカメラ新宿東口店,THREEPPY ビックカメラ新宿東口店,サンドラッグ長崎上戸町店,リアル瓢箪山駅前店,ワッツウィズ棚倉ダイユーエイト店,コーナンガーデンズ うめきた,コメリパワー弘前店,2024年8月31日 -
「ニホンウナギ」表示の意味を理解して食すべし。うなぎは産地だけでなく品種まで確認しなくちゃいけない時代になった。そして注文即提供されたことも“?”。大衆うなぎ うなまる(愛知県安城市)海外養殖のニホンウナギを使用した「特上うな重2,400円」+肝吸い100円。サイズは280gクラス。ジャポニカ種(ニホンウナギ)とビカーラ種,アンギラ種,ロストラータ種の違い。輸入調整品はビカーラ種が増えているという事情。外食の原産地表示ガイドライン,2024年8月31日 -
2024年9月歳時記,旬の野菜・果物・鮮魚品種別産地,季語,季節の言葉,誕生花,記念日,長月,初秋,新秋,早秋,十五夜,中秋の名月,八朔,秋分,秋彼岸,白露,社日,重陽の節句,敬老の日,秋分の日,彼岸,サファイア,リンドウ,岸和田だんじり祭,極早生みかん,豊水梨,つがる,シャインマスカット,冷凍マグロ,真イワシ,ほっけ,生するめいか,2024年8月30日 -
★本日のまとめページ。まずはここからスタート。“開店・旅行・美味検索の窓口”食彩品館.jp,2024年8月30日紹介。マツゲン高野口店,ザビッグエクスプレス春駒通店,コープこうべ伊丹店,まいばすけっと志茂駅前店・府中緑町1丁目店・南平台町店・稲荷町駅東店・方南1丁目店,エディオンルビットタウン中津川店,ノジマ平塚駅前店,ローソン学園前北・近鉄桔梗が丘駅前・旭鶴ケ峰二丁目・お初天神通り,ファミリーマートTX秋葉原駅店,セブンイレブン袖ケ浦のぞみ野・旭中央病院前・台東三ノ輪2丁目・相模原相原2丁目・平塚テクノロード・川崎はるひ野・横浜二俣川駅北・尼崎武庫町4丁目・南阿蘇河陽・伊集院下谷口,十割そば囲炉裏甲府湯村店,アカチャンホンポMOMOテラス店,ココカラファイン成増店,マツモトキヨシ平和台駅前店,サンドラッグ豊岡7条店,クリエイト薬局八王子大和田町店,クリエイトエスディー寒川駅南店,駿河屋名古屋新開橋店,エコライフココイオンタウン防府店,FIT-EASY南アルプス店,セカンドストリート久留米上津店,本日は,旧暦7月27日,先負,丙寅,一白水星,中津ハモの日,ハワイオアフ島,ホールフーズマーケット,カイルア店訪問記,【本日午前追記】→A-プライス脇浜店,新鮮市場きむら太田本店,ドクターマーチン浦添パルコシティ店サンドラッグ広島本通店,ほていやイオンモール大垣店,2024年8月30日 -
イオンスタイル竹の塚,Tecc LIFE SELECT ⾜⽴⽵ノ塚店(仮称,東京都足立区)2025年夏オープン,ヤマダデンキ,イオンスタイル,東武伊勢崎線竹ノ塚駅至近,イトーヨーカドー竹の塚店跡地,2024年8月29日
関連記事
-
食彩品館.jpの新規記事は別サイトで更新されています。過去記事は当サイトで閲覧可能です。 -
★本日のまとめページ。まずはここからスタート。“開店・旅行・美味検索の窓口”食彩品館.jp,2024年9月2日紹介。ローソンS名古屋シミズ富国生命ビル,ファミリーマート舞洲,焼肉きんぐ小牧店・米子店,ステーキ定食松牛八王子店,シャトレーゼ越谷せんげん台店,本日は,旧暦7月30日,赤口,己巳,七赤金星,宝くじの日,くず餅の日,温泉の資格,日本温泉科学会,温泉地域学会,関東の温泉の古画像,【本日午前追記】→タチヤ神領店,オーケー西宮北口店,ラムー日吉津店,ドットエスティイオンモール各務原インター,わくわく広場志都美駅付近商業施設,クスリのアオキ三園平店,サンドラッグ豊岡7条店・恵庭大町店,調剤薬局ツルハドラッグ八戸小中野店・たまプラーザ駅前店・尼崎東園田店・釧路富士見店,クスリのアオキ松山高岡店ププレひまわり薬局グラン春日,クリエイトSD南林間ヒメシャラ通り店,クリエイトエスディー松戸馬橋店,ゲオモバイルベイシア電器市原八幡店,れんげ食堂Toshuぷらむろーど杉田店(東秀),MongTeng(Una casita(おなかすいた),Zoffイオンモール鹿児島店,只今、食彩品館.jp工事中の案内。 -
★本日のまとめページ。まずはここからスタート。“開店・旅行・美味検索の窓口”食彩品館.jp,2024年9月1日紹介。あつた nagAya(第1期),麺場田所商店横浜都岡店,FIT365柏崎柳田,ワッツウィズ能登川佐野フレンドマート店・開成マックスバリュ店・武町タイヨー店,おたからや葛生店・スーパーマルサン桶川店・50号広沢町店・マルナカ美沢店・長岡美沢店・昭島駅南口店・長居駅前店,本日は,旧暦7月29日,大安,戊辰,八白土星,釜飯の日,あずきの日,キウイの日,ギリシャヨーグルトの日,おわら風の盆,冬の東北秘湯,乳頭温泉鶴の湯,中崎山荘奥飛騨の湯(岐阜県高山市)訪問記, -
カネスエ浜松中郡店(仮称,浜松市)2025年4月30日オープン予定で大規模小売店舗立地届出,スーパーマーケット, -
★本日のまとめページ。まずはここからスタート。“開店・旅行・美味検索の窓口”食彩品館.jp,2024年8月31日紹介。ライフ芦屋呉川町店,ベルク中青木店,ドラッグイレブン糸満潮平店,本日は,旧暦7月28日,仏滅,丁卯,九紫火星,二百十日,冬の沖縄八重山諸島5島めぐり,具志堅用高像,大衆うなぎ うなまる(愛知県安城市)ニホンウナギ実食記,【本日午前追記】→スーパーマーケットバロー登美ヶ丘店,Vdrug志染駅前クレストヒルズ薬局,ビッグエー朝霞朝志ヶ丘店・草加中根店,ワークマンプラス甲西店,WORKMAN Plus埼玉江南店,くら寿司札幌新琴似店,ゴンチャ枚方モール店,タリーズコーヒー京阪京橋駅片町口,チャンカレダイナー,松屋苅田店,ステーキ定食松牛三鷹店,松のや大垣島里店,大起水産回転寿司枚方モール店,セブンイレブン文京本駒込2丁目・東京ツインパークス・千代田富士見1丁目・茅ヶ崎高砂通り,ローソン堺翁橋・鹿児島皷川町,KOMEHYO枚方モール,FIT-EASY羽島竹鼻店・片江店,セカンドストリート高槻庄所店・長尾センタープラザ店,DAISOビックカメラ新宿東口店,Standard Products ビックカメラ新宿東口店,THREEPPY ビックカメラ新宿東口店,サンドラッグ長崎上戸町店,リアル瓢箪山駅前店,ワッツウィズ棚倉ダイユーエイト店,コーナンガーデンズ うめきた,コメリパワー弘前店, -
★本日のまとめページ。まずはここからスタート。“開店・旅行・美味検索の窓口”食彩品館.jp,2024年8月30日紹介。マツゲン高野口店,ザビッグエクスプレス春駒通店,コープこうべ伊丹店,まいばすけっと志茂駅前店・府中緑町1丁目店・南平台町店・稲荷町駅東店・方南1丁目店,エディオンルビットタウン中津川店,ノジマ平塚駅前店,ローソン学園前北・近鉄桔梗が丘駅前・旭鶴ケ峰二丁目・お初天神通り,ファミリーマートTX秋葉原駅店,セブンイレブン袖ケ浦のぞみ野・旭中央病院前・台東三ノ輪2丁目・相模原相原2丁目・平塚テクノロード・川崎はるひ野・横浜二俣川駅北・尼崎武庫町4丁目・南阿蘇河陽・伊集院下谷口,十割そば囲炉裏甲府湯村店,アカチャンホンポMOMOテラス店,ココカラファイン成増店,マツモトキヨシ平和台駅前店,サンドラッグ豊岡7条店,クリエイト薬局八王子大和田町店,クリエイトエスディー寒川駅南店,駿河屋名古屋新開橋店,エコライフココイオンタウン防府店,FIT-EASY南アルプス店,セカンドストリート久留米上津店,本日は,旧暦7月27日,先負,丙寅,一白水星,中津ハモの日,ハワイオアフ島,ホールフーズマーケット,カイルア店訪問記,【本日午前追記】→A-プライス脇浜店,新鮮市場きむら太田本店,ドクターマーチン浦添パルコシティ店サンドラッグ広島本通店,ほていやイオンモール大垣店, -
イオンスタイル竹の塚,Tecc LIFE SELECT ⾜⽴⽵ノ塚店(仮称,東京都足立区)2025年夏オープン,ヤマダデンキ,イオンスタイル,東武伊勢崎線竹ノ塚駅至近,イトーヨーカドー竹の塚店跡地, -
★本日のまとめページ。まずはここからスタート。“開店・旅行・美味検索の窓口”食彩品館.jp,2024年8月29日紹介。マックスバリュ長丘店,サニー九大学研都市店,カルディコーヒーファームアトレ亀戸店,ケーズデンキ福岡長浜店,ファミリーマート舟橋逢瀬多田野店,ローソン明治神宮前メトロピア,セブンイレブン半期末集中出店,本日21店オープン,リンガーハットシーナシーナ青森店,松屋宇都宮平松店,お酒の美術館熊本下通店,V・drug黒川店,キリン堂堺神野店,本日は,旧暦7月26日,友引,乙丑,二黒土星,焼きふぐの日,馬肉を愛する日,焼肉の日,スイス,ゴルナーグラート,ホテルクルムとマッターホルン,【本日午前中に追記】→イオンスタイル竹の塚,Tecc LIFE SELECT⾜⽴⽵ノ塚店,テラスモール湘南,湘南マルシェ,ザ・ビッグ静岡新川店,セブンイレブン福岡ももち店(次世代環境配慮型店舗),ペンギンベーカリーCocoポールタウン店,焼肉きんぐ枚方店,七輪焼肉安安札幌北郷店,スシロー西宮門前町店ふたば製麺コレド室町テラス店,かっぱ寿司アトレ亀戸店,mac東温野田店,ぱぱす北品川店ウエルシア掛川中方店・北柏2号店・寝屋川高柳店,サンドラッグ豊岡7条店・恵庭大町店ドラッグユタカ亀岡南つつじヶ丘店キャンドゥDCM美沢店,セカンドストリート久留米上津店,FIT-EASY千種店・秦野店・福津店,平塚ロフト,エキマルシェ大阪UMEST(ウメスト),【本日午後追記】→無印良品唐津,無印良品日田,西松屋イオン日向店のオープン見合わせ,西松屋宮交シティ店,西松屋メガセンタートライアル善通寺店,ケーズデンキ玉島店,


