↓ 紹介記事はこちら→(紹介記事4/13)
●6月下旬オーケー金沢文庫店(横浜市)
神奈川県横浜市金沢区釜利谷東2-2-10
開店日2018年6月下旬
紹介日2018/04/13(紹介記事4/13)
=============================
祝!!TBSラジオ番組「ジェーンスー生活は踊る」にてスーパー総選挙第一位。
ニュースリリース
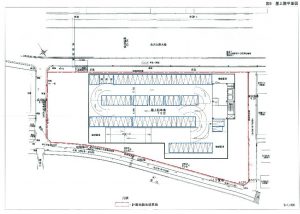
●<2/28計画>オーケー金沢文庫店(仮称:横浜市)
横浜市金沢区釜利谷東二丁目2他
敷地面積 4,729.31㎡ 延床面積 9,045.11㎡
店舗面積 1,922.93㎡ 駐車場 200台
駐輪場 185台
営業時間 8時~10時30分予定
開店予定日2018/02/28計画
紹介記事2017/06/27(紹介記事6/27)
◇建物配置
(画像はすべてクリックで拡大表示)
・1階
・2階
・3階
・屋上
◇出店場所
◇地図
==================================
◆オーケー社に関する食彩品館.jp記事
(★は訪問記事です)
・2017/09/15オーケーストア橋場店(台東区)
・2017/06/27オーケー金沢文庫店(仮称:横浜市)
・2017/06/01オーケー四つ木店(東京都葛飾区)
・2017/05/02オーケー狛江中和泉店(東京都狛江市)
・2017/01/24オーケー梶野町(東京都小金井市)
・2016/12/17オーケーみなとみらいフードコート
・2016/11/15オーケー高円寺店(東京都杉並区)
・2016/10/26オーケー矢口店(東京都大田区)
・2016/10/26オーケー平野店(東京都江東区)
・2016/10/25オーケー西新井店(足立区)
・2016/10/23オーケー小金井梶野町店(東京都)
・2016/10/22オーケー西寺尾町(横浜市)
・2016/10/17オーケー北戸田店(埼玉県戸田市)
・2016/09/24オーケー新子安店(横浜市)
・2016/09/15追記●9/24オーケーみなとみらい(part2記事4/20)
・2016/08/04(仮)オーケー西新井店(足立区)part1
・2016/05/16オーケー戸田駅前店(埼玉県)part2
・2016/04/27オーケー北八王子店(東京都八王子市)part2
・2016/04/23オーケー新子安店(横浜市)part2
・2016/04/17オーケー新子安店(横浜市)part1
・2016/04/12オーケー並木店(横浜市)part2
・2016/01/10オーケー高田馬場店・西府店・川和町店part2
・2015/11/04オーケー並木店(横浜市)
・ <3/20予定>(仮称)オーケー川和町店(横浜市)
・2015/02/05オーケー梶山店(横浜市)part1
・2015/06/06オーケーストア2015年開店予定店舗紹介
・2014/06/12オーケー東戸塚店(横浜市)part1
・2014/05/31オーケー与野店(さいたま市)part1
・2014/03/18オーケーストア2014年出店予定店舗紹介
・2014/02/11オーケー立川富士見町店(東京都立川市)
・2013/12/15オーケーマーケットスクエア相模原part1
・2013/12/07オーケーストア逗子店(神奈川県)part3
・2013/12/04オーケーストア逗子店(神奈川県)part2
・2013/11/28オーケーストア草加舎人店(埼玉県)part2
・2013/10/10オーケーストア相模原SC 計画part1
・2013/05/26オーケー亀戸店(東京都)part1
・2013/05/04オーケー千葉中央店(千葉市)part1
・2013/04/24オーケーストア昭島店(東京都)part2
・2012/12/22オーケーみなとみらいMM21中央区59街区part1
・2012/06/01オーケーストア戸塚上矢部(横浜市)
★・2009/12/11オーケー幕張店(千葉県習志野市)訪問記
★・2010/11/13オーケー仲池上店(東京都)訪問記
★・2009/02/23オーケー川口店(埼玉県)訪問記
◇みなとみらいMM21地区記事
・2014/06/14みなとみらいMM 21 新港地区4街区開発事業
・2013/06/21MARK IS みなとみらいpart4
・2013/03/08MARK IS みなとみらいpart3
・2012/12/22オーケーみなとみらいMM21中央区59街区part1







