コメリパワー名古屋竜泉寺北店(名古屋市)2019年1月22日オープン予定で大店立地届出
・<1/22予定>コメリパワー名古屋竜泉寺北店(名古屋市)
名古屋市守山区桔梗平一丁目102番 ほか3筆
店舗面積 7,720㎡
開店日2019/01/22予定
紹介日2017/09/28(紹介記事9/28)
紹介日2018/07/(紹介記事7/)
※予定日は大店立地届出時の開店予定で、実際の開店日ではありません。確定した時点で<予定>を取って表示します。
◇出店地付近の地図(桔梗平1丁目を表示)
========================
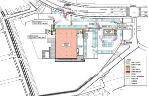
●2018年9月計画 コメリパワー竜泉寺店(名古屋市)
名古屋市守山区桔梗平一丁目102番 ほか3筆
敷地面積 28,973㎡
延床面積
コメリ棟 9,698㎡
未定テナント棟 220㎡
延床面積計 9,918㎡
店舗面積
コメリ棟 7,500㎡
未定テナント棟 220㎡
店舗面積 計 7,720㎡
※未定テナントはコンビニを予定
駐車場
1階 298台
2階 181台
合計 479台
開店予定日2018年9月
紹介日2017/09/28(紹介記事9/28)
□1階
□2階
◇地図
=============================
◇直近のホームセンター出店記事(一部)
・<8月予定>(仮)ニトリ岩国店(岩国市)(part1記事9/30)
・<8/17予定>(仮)カインズ相模原当麻店(紹介記事12/7)
・<8月下旬竣工予定>ダイユーエイト仙台茂庭店(紹介記事2/10)
・<9/1予定>ドンキホーテ京都山科商業施設計画(part1記事8/5)
・<9/5予定>(仮)サンデーいわき泉町店(福島県)(紹介記事4/1)
・<9/28>ドンキホーテYK-14BLDG (東京都)(紹介記事2/24)
・9/29イエローハット車検センター高松春日店(香川県)(紹介記事9/26)
・9/29カインズStyle Factory テラッセ納屋橋店(紹介記事9/27)
・<9/30予定>(仮)DCMダイキ今治新都市店(紹介記事3/31)
・9/29コメリパワー前橋店(群馬県前橋市) (追記記事7/17)
・9/29ニトリデコホーム横須賀モアーズシティ店(横浜市)(紹介日9/24)
・<10/1予定>ひらせいホームセンター川西店(山形県)(紹介記事1/28)
・<10/1予定>ダイレックス・ゲオ・ダイソー・ブリジストン
アクロスプラザ倉敷児島(仮称)(倉敷市)(紹介記事2/23)
・<10/1予定>コーナンホームストック黒潮店(幡多郡)(紹介記事3/29)
・<10/2予定>スーパービバホーム札幌白石店(紹介記事2/9)
・<10月予定>ロイヤルプロ横浜旭(横浜市)(紹介記事2/12)
・<10月予定>ホームセンターコーナン名古屋北店(紹介記事11/21)
・<10/4予定>コメリホームセンター中野店(中野市)(紹介記事4/22)
・<11/1予定>ドンキホーテ(仮)世田谷若林店舗(紹介記事12/3)
・<11/1予定>(仮)マナベインテリアハーツ栃木大平店(紹介記事4/21)
・<11/3予定>(仮)DCMホーマック室蘭中島店(紹介記事3/20)
・<11/18予定>ホーマックニコット利尻店(北海道)(紹介記事4/14)
・<11/24予定>グッデイ基山弥生ヶ丘店(佐賀県)(紹介記事4/2)
・<11/28予定> ドンキホーテ(仮)ダイワロイヤル延岡(紹介記事6/13)
・<11/30予定>(仮)コメリホームセンター北茨城店(紹介記事4/17)
・<12/1予定>DCMカーマ豊田五ヶ丘店(愛知県)(紹介記事4/30)
・<12/1予定> ニトリ帯広店(帯広市)(紹介記事6/15)
□2018年
・<1/27予定>(仮)コーナンPRO高槻下田部店(紹介記事7/16)
・<2/1予定>DCMホーマック大宮七里店(さいたま市)(紹介記事7/8)
・<2/22予定>(仮称)コメリホームセンター亘理店(紹介記事7/31)
・<3/1予定>ひらせいホームセンター寺尾台店(新潟市)(紹介記事7/11)
・<3/1予定>(仮)ビバモール本庄計画(埼玉県)(紹介記事8/21)
・<3/1予定>(仮)ジョイフルエーケー屯田店 園芸館(紹介記事9/12)
・<3/21予定>(仮)DCMくろがねや上野原店(紹介記事8/13)
・<3/22予定> (仮)ユーホー倉敷大島店(倉敷市)(紹介記事9/23)
・<3/27予定>(仮)コーナンPRO加古川店(兵庫県)(紹介記事9/18)
・<3/29予定>ロイヤルホームセンター足立店(紹介記事9/3)
・<5/14予定>DCMダイキ余戸店(仮:松山市)(紹介記事9/25)
・<5/25予定>ドン・キホーテ鶴見店(横浜市)(紹介日12/04)
・<5月下旬予定>DCMカーマ豊橋汐田橋専門館 (紹介記事7/22)
・2018年9月計画コメリパワー竜泉寺店(名古屋市)(紹介記事9/28)
==========================
◇直近オープン記事 ↓ 日付クリックで記事にリンク
・9/29ホームセンターコーナンイオンタウン鈴鹿店(三重県)(紹介記事9/4)
・9/20ニトリデコホーム西友浦安店(千葉県)(紹介記事9/14)
・9/20コメリホームセンター栗山店(北海道)(紹介記事9/13)
・9/16コメリホームセンター小矢部店(富山県)(紹介記事9/8)
・9/16コメリホームセンター小矢部店(富山県)(紹介記事3/8)
・9/15ニトリ近鉄八尾駅前店(大阪府八尾市)(紹介記事9/11)
・9/15イエローハット苫小牧澄川店(北海道)(紹介記事9/13)
・9/14ナフコ TWO-ONE STYLE 佐賀店(開店日9/14)
・9/13コメリホームセンター鉾田店(茨城県)(紹介記事9/7)
・9/4オートバックス カーズ カフェ(大阪市)(紹介記事9/4)
・9/1コメリホームセンター上河内店(宇都宮市)(紹介記事8/23)
・8/30コーナンPRO外環新石切店(大阪府)(紹介記事8/29)
・8/11サンデーいわき泉店(福島県いわき市)(紹介記事8/5)
・ジュンテンドー北栄店(鳥取県)(紹介記事12/28)
・7/28イエローハット厚別西店 (北海道札幌市)(紹介記事7/24)
・7/15カインズ相模原愛川インター店<R>(神奈川県)(紹介記事7/13)
・7/14ナフコ滋賀大津店(滋賀県)(紹介記事7/14)
・7/14HODAKA名古屋インター店(愛知県)(紹介記事7/14)
・7/14イエローハット湖西新居店(静岡県湖西市)(紹介記事7/9)
・7/14イエローハット佐伯ときわ店(大分県佐伯市)(紹介記事7/9)
・7/14ドン・キホーテ新宿東南口店(新宿区)(紹介記事6/28)
・7/12カインズ浜松都田テクノ店<R>(浜松市)(紹介記事7/8)
・7/7イエローハット徳島藍住店 (徳島県板野郡)(紹介記事7/5)
・7/6コメリパワー旭川宮前店(旭川市)(part1記事10/01)
・7/5ジャンボエンチョー浜松南店<R>(浜松市)(紹介記事7/1)
・7月ホームセンターヤマキシ新加賀店(桑原店:石川)(part1記事10/29)
・ドンキホーテ(仮)京都山科(京都市)(part1記事2/28)
・ドン・キホーテ名護店(名護市)(紹介記事1/30)
・ホームセンターコーナン広島皆実町店(紹介記事12/05)
・(仮)ホームプラザナフコ東かがわ店(part1記事2/27)
・(仮)サンデー盛岡本宮店(盛岡市)(part1記事2/26)
・ ヒルズコート(マナベ・ゲオ)(京都府)(part1記事3/1)
・ナフコ TWO – ONESTYLE 佐賀店(紹介記事1/2)
・コメリパワー前橋店(前橋市)(part1記事7/17)
・カインズ宇土店(熊本県)(紹介記事12/18)
・ASPO,ホーマック,士幌町農協(part1記事8/27)
・カインズ相模原当麻店(part1記事8/28)
・ドンキホーテ赤坂4丁目店舗新築工事(紹介記事11/13)
・6/30ピカソ能見台駅前店(横浜市)(紹介記事6/24)
・6/30MEGAドン・キホーテ伊東店(part1記事8/11)
・6/30ニトリ渋谷公園通り店(東京都渋谷区)(紹介記事6/9)
・6/28ドン・キホーテ茅野店(長野県茅野市)(紹介記事6/16)
・6/28カインズ沼津店<R>(静岡県沼津市)(紹介記事6/25)
・6/27島忠ホームズ東村山店(東京都)(紹介記事6/27)
・6/23東京インテリア家具神戸店(part1記事6/22)
・6/23銀座ロフト(東京都中央区)(紹介記事5/2)
・6/22ホームプラザナフコ佐土原店(宮崎市)(紹介記事6/21)
・6/22DCMホーマック東苗穂店(札幌市)(紹介記事6/20)
・6/22ニトリイーアス高尾店(東京都八王子市)(紹介記事6/19)
・6/16MEGAドン・キホーテ神戸学園都市店(神戸市)(紹介記事6/2)
・6/16イエローハット伏見下鳥羽店(京都市)(紹介記事6/14)
・6/9MEGAドン・キホーテ東名川崎店(川崎市)(紹介記事10/16)
・6/7コーナンPRO南越谷店(埼玉県)(紹介記事6/6)
・6/1はぐはぐドンキadventure保育園(東京都)(紹介記事3/9)
・6/1コメリHC陸前高田店(岩手県)(part1記事10/01)
・5/17ホームセンターコーナンPRO神辺店(part1記事7/25)
・5/12MEGAドン・キホーテ渋谷本店(紹介記事5/1)
・5/3ニトリイオンモール北戸田店(埼玉県戸田市)(紹介記事5/2)
・4/27ニトリデコホーム梅田阪急三番街店(大阪市)(紹介記事4/26)
・4/27ドン・キホーテあべの天王寺駅前店(紹介記事12/22)
・4/27ホームセンターバロー浜北店(浜松市)(紹介記事2/4)
・4/28ファニチャードーム新岡崎店(愛知県)(紹介記事4/6)
・4/28ニトリEXPRESSららぽーと富士見店(埼玉県)(紹介記事4/25)
・4/28カインズ広島LECT 店(広島市)(紹介記事4/28)
・4/28MEGAドンキホーテ津桜橋店(三重県)(紹介記事4/14)
・4/28ニトリデコホームフレスポ八潮店(埼玉県)(紹介記事4/25)
・4/28イエローハット恵庭恵央店(北海道恵庭市)(紹介記事4/27)
・4/28イエローハット勝山旭町店(福井県勝山市)(紹介記事4/27)
・4/25プレLECT(レクト)[イズミ、カインズV・drug](広島)(記事7/10)
・4/21川崎ロフト<移転R>(川崎市)(紹介記事4/19)
・4/21プロショップホダカ東仙北店(盛岡市)(紹介記事4/20)
・4/21ニトリデコホーム浜松メイワン店(浜松市)(紹介記事4/20)
・4/21ニトリさいか屋藤沢店(神奈川県)(紹介記事4/20)
・4/21ニトリ町田東急ツインズ店(町田市)(紹介記事4/20)
・4/21ニトリイオン尼崎店(兵庫県尼崎市)(紹介記事4/20)
・4/20ニトリイオンタウン姶良店(鹿児島県)(紹介記事4/18)
・4/20DCMカーマ安城住吉店(愛知県)(part2記事4/30)
・4/19ドン・キホーテ下館店(茨城県筑西市)(紹介日4/6)
・4/19ホームセンターコーナン宮前上野川店(川崎市)(紹介記事4/19)
・4/15シティドイト西川口店(埼玉県川口市)(紹介記事4/1)
・4/14デコホーム浦和パルコ店(さいたま市)(紹介記事4/12)
・4/14ニトリEXPRESSららぽーと和泉店(紹介記事4/12)
・4/14ニトリチーノはちのへ店(青森県)(紹介記事4/12)
・4/13ホームプラザナフコ芸濃インター店(part1記事5/28)
・4/7ニトリ大船店(神奈川県鎌倉市)(紹介記事4/4)
・4/6ホームプラザナフコ大多喜店(千葉県)(紹介記事4/6)
・4/5コメリパワー佐沼店(宮城県登米市)(紹介記事4/4)
・4/5ホームセンターバロー稲沢平和店<R>(愛知県)(紹介記事4/5)
・4/1イエローハット車検センター刈谷店(愛知県)(紹介記事3/31)
・4/1コメリホームセンター高崎箕郷店(群馬県)(紹介記事3/26)
・3/31ニトリEXPRESS札幌エスタ店(紹介記事3/9)
・3/31MEGAドン・キホーテ福岡那珂川店(紹介記事3/24)
・3/30ニトリ武雄店(佐賀県武雄市)(紹介記事3/24)
・3/29ドン・キホーテ小山駅前店( 栃木県)(紹介記事3/19)
・3/25スーパービバホーム厚木南インター(part1記事8/30)
・3/17セキチューせんげん台西店(埼玉県)(part1記事10/7)
・3/17イエローハットつくば研究学園店(茨城県)(紹介記事3/15)
・3/17イエローハット高松屋島店(香川県)(紹介記事3/15)
・3/17ニトリカラフルタウン岐阜店(岐阜市)(紹介記事3/10)
・3/17MEGAドン・キホーテ豊郷店(滋賀県)(紹介記事3/5)
・3/15ニトリ東武池袋店(東京都豊島区)(紹介記事2/14)
・3/15ニトリマロニエゲート銀座店(東京都)(紹介記事3/14)
・3/8ダイユーエイト白河店(福島県)(part1記事9/5)
・3/3ホームセンター山新東海店(茨城県那珂郡)(紹介記事3/2)
・3/2コーナンPRO外環大東店(大阪府大東市)(紹介記事3/1)
・2/27建デポ足立入谷店(東京都足立区)(紹介記事1/22)
・2/23驚安堂東松山六軒町店(埼玉県東松山市)(紹介記事2/20)
・2/19東京インテリア家具大阪本店(大阪市)(紹介記事2/8)
・2/19オートバックス車買取専門店豊田浄水店(紹介記事2/18)
・2/17イエローハット小牧二重掘店(愛知県)(紹介記事2/16)
・2/17ドン・キホーテ神保町靖国通り店(東京都)(紹介記事2/3)
・2/16ニトリ狛江世田谷通り店(東京都狛江市)(紹介記事2/10)
・2/13オートバックス車買取専門店荻窪店(紹介記事2/12)
・2/10ニトリ古河店(茨城県古河市)(part1記事7/16)
・2/10コメリハード&グリーン大岳店(福岡市)(紹介記事2/7)
・2/9Smart+1(スマートワンプラス)茨木西店(茨木市)(紹介記事2/4)
・2/9ホームプラザナフコ牟礼店(山口県防府市)(紹介記事2/9)
・2/1ドイトプロ岩槻店(さいたま市)(紹介記事1/24)
・2/1ユニディ相模大野店(神奈川県相模原市)(紹介記事2/1)
・2/1コメリハード&グリーン大泉学園店(東京都)(紹介記事1/26)
・1/21東京インテリア家具大阪店(紹介記事7/26)
・1/20コメリパワー岩見沢店(岩見沢市)(part1記事7/23)
・1/20オートバックス岡崎東大友店(愛知県岡崎市)(紹介記事1/19)
・1/13ニトリ名鉄名古屋駅前店(仮)(紹介記事10/21)
・1/6HODAKA栗東店(滋賀県栗東市)(紹介記事1/6)
============================




