・<7/9予定>ドラッグストアモリ山口下市店(仮称,山口市)
山口市下市町1511の15
店舗面積 1,411㎡
大店立地届出時開店予定日2024/07/09予定
計画書届出時開店予定日2024/08/予定
記録日2023/10/18(紹介記事10/19)
記録日2024/01/04(紹介記事10/19追記)
==================
【以下、計画記事データ】
計画書届出(今回記事)→大店立地届出の順に出店届
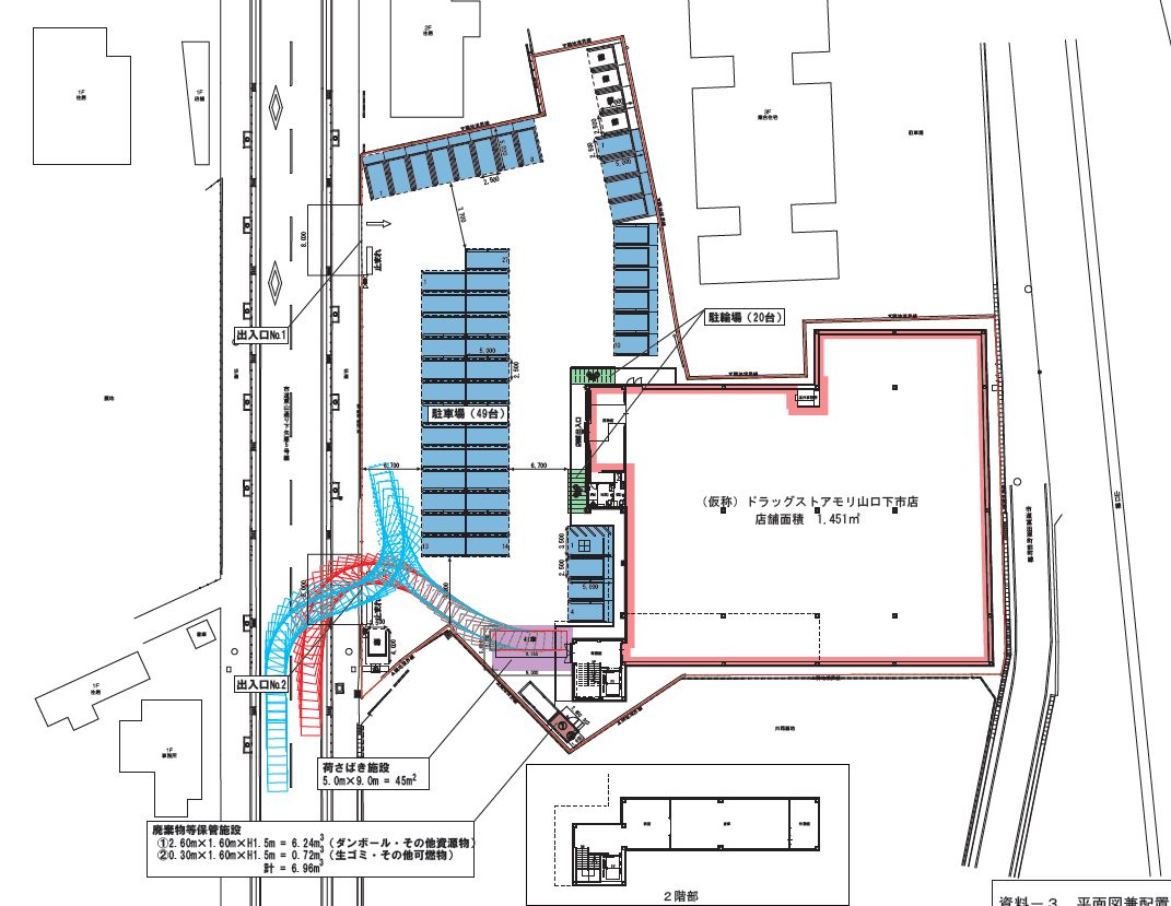
・<8月予定>ドラッグストアモリ山口下市店(仮称,山口市)
山口県山口市下市1511番15外
敷地面積 3,720㎡
店舗面積 1,451㎡
営業時間 24時間(予定)
計画書届出時開店予定日2024/08/予定
記録日2023/10/18(紹介記事10/19)



◇出店地付近の地図
=================
※計画書や大店立地届出時の開店予定日は実際の開店日ではありません。大店立地届出日を基準日としてその翌日から8ケ月後を開店予定日として届出しているのがその理由(8ケ月間規制,例外あり)。
・【参考事例】
①6/1届出(起算日)→8ケ月後の2/2が応当日で2/1が満了日
②6/30届出(起算日)→8ケ月後の2/30が応当日だが、無いため2/28が満了日
また、8ケ月経過しなくとも意見を有しないと県からの通知が届いた時点で手続きは完了し出店が可能となる
===================
◇ドラッグストアに関する記事一覧
==================

