・<2027年12月予定>神戸三宮雲井通5丁目地区第一種市街地再開発事業(兵庫県神戸市)
兵庫県神戸市中央区雲井通5丁目
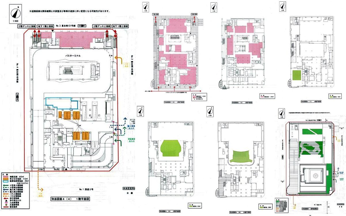
区域面積約1.3ha
敷地面積 8,228㎡
店舗面積 6,500㎡
駐車場 65台
地下3階、地上32階、塔屋2階/約163m
届出概要
神戸市HP
大店立地届出時開店予定日2027年12月予定
記録日2023/12/20(紹介記事12/20)
※大店立地届出時の開店予定日は実際の開店日ではありません。大店立地届出日を基準日としてその翌日から8ケ月後を開店予定日として届出しているのがその理由(8ケ月間規制,例外あり)。
・【参考事例】
①6/1届出(起算日)→8ケ月後の2/2が応当日で2/1が満了日
②6/30届出(起算日)→8ケ月後の2/30が応当日だが、無いため2/28が満了日
また、8ケ月経過しなくとも意見を有しないと県からの通知が届いた時点で手続きは完了し出店が可能となる
*********************



◇出店地付近の地図
===============

