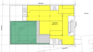
・<3/20>イトーヨーカドーKRC瀬谷駅北口SC(仮)
神奈川県横浜市瀬谷区中央6番15
敷地面積: 1,894.33 ㎡
店舗面積: 1,421㎡
延床面積: 3,609.01 ㎡
建物構造: 地上 3 階+PH
駐輪場 46台
営業時間予定 9時~23時
・併設施設
飲食・サービス店舗/床面積:666 ㎡)
建築着工 2017年2月
開業日 2017/03/20予定
紹介日 2016/10/20(part1記事10/20)
□1階
=================================
◇イトーヨーカドーに関する記事一覧(一部)★訪問記
・2017/07/19プライムツリー赤池(愛知県日進市)
・2017/06/23パープルクィーンで梅仕事(IY安城店)
・2017/03/01カラフルタウン岐阜<R>(岐阜市)
・2016/12/28成都伊藤洋華堂眉山店(中国四川省)
・2016/11/22アリオ橋本(神奈川県相模原市)
・2016/11/16食品館イトーヨーカドー梅島店(足立区)
・<2017年11月予定>イトーヨーカドーKRC瀬谷駅北口SC(仮)
・2016/10/03イトーヨーカドープライムツリー赤池(愛知県)part19
・2016/09/10食品館イトーヨーカドーららぽーと湘南平塚店
★・2016/05/27イトーヨーカドーアリオ柏店訪問記(千葉県柏市)
★・2016/05/25セブンパークアリオ柏訪問記(千葉県柏市)
★・2016/05/26タカマル鮮魚店アリオ柏店で食事(千葉県柏市)
・2016/03/21イトーヨーカドープライムツリー赤池part18
・2015/10/23セブンパーク柏・イトーヨーカドー(千葉県)part1
・2015/08/19アリオ日進赤池SC・イトーヨーカドー(愛知県)part15
・★2015/07/31イトーヨーカドー安城店(愛知県安城市)訪問記
・2015/07/24イトーヨーカドー安城店<R>(愛知県)
・2015/05/26イトーヨーカドーアリオ札幌店<R>(part1)
・2015/05/21イトーヨーカドーアウトレット ザ・プライス川口店3階
・2015/04/23イトー ヨカドー 大宮店・コクーン2(さいたま市)
・2015/04/23イトーヨーカドー古淵店<R>(神奈川県相模原市)
・2015/01/17イトーヨーカドー浜松宮竹店(静岡県浜松市)
・2014/12/25アリオ日進・イトーヨーカドー(愛知県日進市)(part14)
・2014/11/22グランツリー武蔵小杉(川崎市)(part2)
・2014/09/21アリオ柏沼南イトーヨーカドー(千葉県)(part2)
・2014/09/19アリオ松原SC・イトーヨーカドー(大阪府)
・2014/04/17食品館イトーヨーカドー小手指店(埼玉県)(part1)
★・2013/12/19イトーヨーカドー安城店<R>訪問記(愛知県)
★・2013/12/11イトーヨーカドー鎌ヶ谷店訪問記(千葉県鎌ヶ谷市)
・2013/12/04ザ・プライス 野田店(千葉県)
★・2013/12/04食品館イトーヨーカ堂石神井公園(練馬区)
★・2013/11/27アリオ市原・イトーヨーカドー訪問記(千葉県市原市)
★・2013/08/29イトーヨーカドー・アリオ仙台泉店訪問記(仙台市)
・2013/07/19食品館イトーヨーカドー王子店(東京都北区)
・2013/06/28アリオ上尾・イトーヨーカドー上尾店(埼玉県)
・2013/04/22イトーヨーカドー野田愛宕(千葉県)
★・2013/03/11イトーヨーカドー浜松宮竹店訪問記(静岡県浜松市)
・2013/03/07ザ・プライス湘南台店(神奈川県藤沢市)
・2012/11/22アリオ鷺山イトーヨーカドー(埼玉県久喜市)
・2012/11/14エキータ前橋グランド・ステーション・プラザ」(群馬県) IY跡地
・2012/08/17食品館イトーヨーカドー早稲田店(東京都新宿区)
★・2012/06/15イトーヨーカドー安城店訪問記(愛知県)
★・2011/11/21カラフルタウン岐阜・イトーヨーカドー<R>訪問記(岐阜県)
★・2011/05/11イトーヨーカドーabeno CUES TOWN訪問記(大阪市)
★・2011/04/29アリオモール上田・イトーヨーカドー訪問記(長野県)
★・2011/04アリオモール上田訪問記(長野県)
★・2009/12/04ザ・プライスせんげん台訪問記(埼玉県越谷市)
★・2009/03/05アリオ川口・イトーヨーカドー訪問記(埼玉県)
★・2009/03/04ザ・プライス川口店訪問記(埼玉県)







