↓ 紹介記事はこちら→(紹介記事10/14)
●10/24相鉄ライフやよい台店
●10/24そうてつローゼン弥生台駅前店(横浜市)
神奈川県横浜市泉区弥生台16-1
℡045-811-5281
朝8 : 00 ~ 夜10 : 45
売場面積 969 ㎡(293 坪)
ニュースリリース
開店日2017/10/24
紹介日2017/10/14(紹介記事10/14)
============================
★大店立地届出により開店予定日その他を修正しました
↓ 紹介記事はこちら→(紹介記事5/12)
・<11/28予定> (仮称)相鉄ライフ弥生台(横浜市)
神奈川県横浜市弥生台16番地の1ほか
店舗面積 1,563㎡
開店日2017/11/28
紹介日2016/12/06(紹介記事12/06)
紹介日2017/05/12(紹介記事5/12)
================================
【以下、過去記事より抜粋】
●<8/20予定>相鉄ローゼン相鉄ライフ弥生台 (仮称)
神奈川県横浜市泉区弥生台16番1号ほか
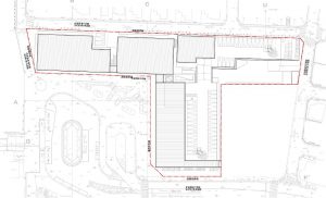
店舗面積 1,648㎡
敷地面積 5,856㎡
延床面積 4,764㎡
駐車場 27台(総収容台数49台)
駐輪場 97台
開店日2017/08/20<予定>
紹介日2016/12/06(紹介記事12/06)
□1階
===========================
◇相鉄に関する記事
・2017/05/12相鉄ライフ弥生台(横浜市)大店立地
・2016/12/06相鉄ライフ弥生台 (仮称:横浜市)計画記事
・2015/12/01相鉄ジョイナス(横浜市)






