・1/25フジ桜馬場店(山口県周南市)
山口県周南市桜馬場通三丁目16番地
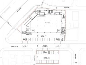
敷地面積 3,278㎡
延床面積 2,437㎡
店舗面積 1,238㎡
投資額 約7.5億円
年商予定 10億円
駐車台数 74台
営業時間 9:00~22:00
ニュースリリース
開店日2020/01/25
紹介日2018/12/20(紹介記事12/20)
紹介日2019/06/07(紹介記事12/20)
紹介日2020/01/21(紹介記事1/21)

=======================
・<12/27予定>フジ桜馬場店(周南市)
山口県周南市桜馬場通三丁目16
店舗面積 1,238㎡
開店日2019/12/27予定
紹介日2018/12/20(紹介記事12/20)
紹介日2019/06/07(紹介記事12/20)
※予定日は大店立地届出時の開店予定で、実際の開店日ではありません。確定した時点で<予定>を取って表示します。
◇地図
===========================
【以下、計画記事データ】
・2019年12月予定フジ桜馬場店(山口県周南市)
山口県周南市桜馬場通三丁目16ほか
敷地面積 3,278㎡
建築面積 1,930㎡
店舗面積 1,269㎡
駐車場 71台
開店日2019年12月予定
紹介日2018/12/20(紹介記事12/20)
◇地図
=======================
◇関連記事
・株式会社フジとイオン株式会社の資本業務提携のお知らせ
◇フジに関する記事一覧
======================
◇フジ社に関する食彩品館.jp記事(一部)
★は訪問記
・2019/05/17ピュアークック吉浦店(呉市)
・2019/05/17ピュアークック長ノ木店(呉市)
・2019/05/17ピュアークック中通店(呉市)
・2019/02/19フジグラン四万十(高知県)
・2018/12/20フジ桜馬場店(山口県周南市)
・2018/11/22フジ宇和島店(愛媛県宇和島市)
・2018/11/03フジ宇和店(愛媛県西予市)
・2018/10/26フジグランナタリー(広島県)
・2018/10/15フドマートピュアークック東雲店(広島市)
・2018/10/01フジ北条店(愛媛県松山市)
・2018/09/11フジグラン三原(広島県三原市)
・2018/08/30フジ柳井店(山口県柳井市)
・2018/05/12フジZY三入店(広島市)改装
・2018/03/17フジ波止浜店(松山市)
・2018/03/10フジグラン三原(広島県三原市)
・2018/02/23フジグラン岩国(山口県岩国市)改装
・2018/02/23フジグラン高知(高知市)改装
・2018/02/19フジグラン広島(広島市)改装
・2018/01/12フジ宇和島店(愛媛県宇和島市)
・2017/09/20ポケモンストアエミフルMASAKI(愛媛県伊予郡)
・2017/02/26フジグラン松山(愛媛県)
・2017/02/25フジ中吉野店(徳島市)
・2017/02/19フジグラン神辺<R>(広島県福山市)
・2017/02/06フジ小郡店(山口市)
・2016/10/24フジグラン緑井<R>(広島市)
★・2010/08/23 フジグラン神辺(広島県)訪問記
★・2010/08/17フジヴェスタ白島店(広島市) 訪問記
★・2010/08/20 フジ ZY東雲店(広島市)訪問記
・2014/02/21フジ三篠(みささ)店(広島市西区)
=====================
★★直近の記事★★
◆新着記事。画像or文章クリック
[npc id=”new-post” posts_per_page=”15″ width=”50″ height=”50″]
=====================




