・<8/28予定>グッデイ山口小郡店(仮称,山口市)
山口市小郡前田町5の11
店舗面積 5,647㎡
駐車場 103台
届出概要
大店立地届出時開店予定日2024/08/28予定
計画書届出時開店予定日2024/12/予定
前回改装開店日2021/04/23
記録日2021/04/09(紹介記事4/9)
記録日2023/10/18(紹介記事10/19)
記録日2024/01/29(紹介記事10/19追記)
====================
【以下、過去記事データ】
計画書届出→大店立地届出の順に出店届。
当店は2022年12月31日に一時閉店し、建て替えオープン。
・<12月予定>グッデイ山口小郡店(仮称,山口市)
山口県山口市小郡郡前田町5陣2外
敷地面積 13,181㎡
店舗面積 5,623㎡
駐車場 143台
計画書届出時開店予定日2024/12/予定
前回改装開店日2021/04/23
記録日2021/04/09(紹介記事4/9)
記録日2023/10/18(紹介記事10/19)



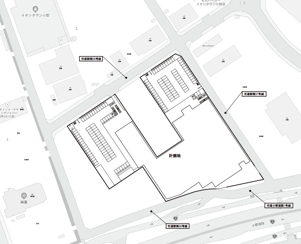
◇出店地付近の地図
=================
※計画書や大店立地届出時の開店予定日は実際の開店日ではありません。大店立地届出日を基準日としてその翌日から8ケ月後を開店予定日として届出しているのがその理由(8ケ月間規制,例外あり)。
・【参考事例】
①6/1届出(起算日)→8ケ月後の2/2が応当日で2/1が満了日
②6/30届出(起算日)→8ケ月後の2/30が応当日だが、無いため2/28が満了日
また、8ケ月経過しなくとも意見を有しないと県からの通知が届いた時点で手続きは完了し出店が可能となる
※「新設」とは建物の新築・増築の湯無を問わず店舗面積が基準面積を超える場合をいう。(大規模小売店舗立地法の解説:経済産業省)
**********************
【以下、過去記事データ】
・2021/4/23改装グッデイ山口小郡店(山口市)
山口県山口市小郡前田町5番33号
℡083-976-0555
営業時間 9:00〜19:00
改装開店日2021/04/23
記録日2021/04/09(紹介記事4/9)

◇地図
=================
・グッデイに関する記事一覧
====================

