★大規模小売店舗立地届出前の出店計画届出(愛知県商業・まちづくりガイドライン)の情報です。大規模小売店舗立地届出は2024年6月頃に届出及び建築着工、2025年2月竣工予定。計画書の開店予定は2025年4月中旬。
・<2025年4月予定>DCM豊橋曙店(愛知県豊橋市)
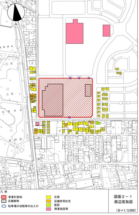
愛知県豊橋市曙町字松並101-153の一部
建築面積 10,447㎡
延床面積 10,250㎡
店舗面積 8,679㎡
駐車場 421台
出店概要書
開店日2025/04/
記録日2024/04/19(紹介記事4/19)
◇出店地付近の地図
===============
・DCMホームセンターに関する記事
・カーマホームセンターに関する記事一覧
・ダイキに関する記事一覧
==★★★★★====
今後、商業施設の新店・開業情報や飲食店実食記,旅行記,温泉研究記等食彩品館.jp記事の更新情報は「X(旧 Twitter)食彩品館.jp」と「Facebook食彩品館.jpページ」にて集中管理いたします。
※SNS更新予定(今後)
◎日々爆追記中
〇ボチボチ追記中
△思い出したように追記中
▼ほぼ未更新
1.食彩品館.jp
①◎ HP 食彩品館.jp
②◎ X(旧 Twitter)
③◎ Facebook (このページ)
食彩品館.jpページ
2.田中流通総合企画(TMGP)
①○ HP田中流通総合企画(TMGP)
②△ X(旧 Twitter)田中流通総合企画(TMGP)
③△ Facebook田中流通総合企画(TMGP)
④△ instagram田中流通総合企画(TMGP)
====★★★=========
==============
◇TMGP(田中流通総合企画)通信
↓ クリック

====★★★=========
★連絡方法とご意見無用の方針明記
★★★★★★★★
Positioned as a search window
for new stores and local information.
Introducing things and things
related to food and travel.
Started with a blog that visits
commercial facilities and introduces
wonderful products, sales floor design,
and customer-oriented services.
Currently, I am writing articles
about travel memories and food,
with a focus on information on
new stores and renovations of
commercial facilities.
For commercial facilities,
we introduce information on openings
of interest, mainly supermarkets.
Although we collect information
nationwide, we do not cover everything.
Additionally, the information is based
on our own research, so we strongly
recommend that you check the official
page for yourself.
*[About advertising]
Shokusaihinkan.jp operates with
advertising revenue mainly from
affiliate advertising.
Advertisements are displayed throughout
the article.
Please refrain from inquiring about
the official page of the article
based on the Shokusaishinkan.jp article.
We also have a request on the
official page.
If you receive an inquiry from a third
party regarding an article, please
advise us by saying, “I would like you
to contact Shokusaihinkan.jp directly.”
If you are making an inquiry on behalf
of someone else, please also include
information about the person making
the inquiry.
*In either case, check the sender’s
IP address and sender information.
We will decide whether to respond
directly or through our website,
or decide whether to take legal action.
商業施設を訪れ、素敵な商品や売場作り、客志向のサービスを紹介するブログからスタート。
現在は商業施設の新店・改装情報を中心に、旅の思い出や食事について記事にしています。
商業施設はスーパーマーケットを中心に気になるオープン情報を紹介。
全国を対象に情報収集していますが、全部は網羅しておりません。
また、情報は独自調査のものなので、公式ページをご自身で確認されることを強くお勧めします。
※【広告について】
食彩品館.jpはアフリエイト広告を中心とする広告収入で運営。
記事各所に広告が表示されています。
※【お願い】
食彩品館.jp記事を根拠に記事対象公式ページに問い合わせることはやめてください。
また、公式ページ様にお願いがあります。
記事について第三者から問い合わせがあった場合、”直接、問い合わせ者本人から食彩品館.jpへ尋ねてください”とアドバイスすることをお願いします。
代替で問い合わせされる場合は質問者についての情報(個人情報を除く)も併せて連絡をお願いします。
※いずれの場合も送信者のIPアドレスや送信元情報を確認します。
直接返信・当ホームページで回答の是非、あるいは法的手段の判断をします。
★★★★★★★★





































