===========食彩品館.jp記事検索============
↓ 調べたい店・商品・場所・建物名称を入力して記事検索↓
●3/21道の駅もっくる新城
※「もっくる」は木材・来るの意味
新城市八束穂字五反田329-7
新城市HP
道の駅 公式ページ
中部の道の駅ページ
木造2階建て
延面積 1,073.69㎡
施設面積10,296㎡
↓ 撮影日 2015/03/22
◇施設
・道路・観光案内施設、飲食・物販施設、足湯、電気自動車用充電器(急速/普通)など
・駐車場 小型車 75台、大型車 13台
身障者用 2台
・トイレ 男性 (小)8器 (大)3器 女性 11器
多目的 2器
営業時間 午後9時~午後6時
◇指定管理者
株式会社名鉄レストラン
◇コンセプト
・新城(奥三河)の木材をふんだんに使った人に優しい施設
・「道の駅」から「まちの駅」へ 人が集まる施設
・世代間の交流に寄与する施設
「21世紀の馬防柵」として、地元産材を用いて木組みの架構とする。
↓ 馬防柵 2008/05/18撮影

・施設外観をイメージ
・施設名称のアルファベット頭文字「M」を表現
・「親しみ・ほっこり」を感じさせる手書き書体
◇備考
・新東名高速道路の新城インターチェンジ(IC)隣接
◇仕様
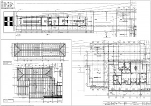
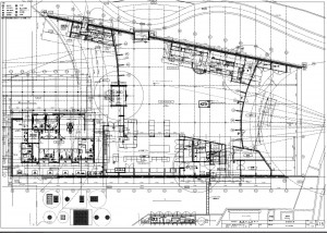
■配置図
■平面図

■立体図
◇資料




==================================
◇近隣道の駅に関する記事
・2012/07/01道の駅 鳳来三河三石(愛知県新城市)
・2013/06/04道の駅どんぐりの里いなぶ(愛知県豊田市)
◇愛知県の道の駅
・2015/03/26アオリイカとミクリ貝(その3鮮魚編)
・2015/03/23筆柿あかみそドレッシング他(その2売店編)
・2015/03/12大薯(ダイジョ)と青島みかん(その1 直売所編)
・2013/02/05道の駅 田原めっくんはうす(愛知県田原市)
・2013/02/05道の駅 あかばねロコステーション(愛知県田原市)
・2013/12/10道の駅瀬戸しなの(愛知県瀬戸市)再訪問
・2013/06/04道の駅どんぐりの里いなぶ(愛知県豊田市)
・2012/12/08道の駅 藤川宿(愛知県岡崎市)
・2011/04/02道の駅 瀬戸しなの(愛知県瀬戸市)
◇道の駅記事
■道の駅に関する記事一覧ページ
・2015/03/26アオリイカとミクリ貝(その3鮮魚編)
・2015/03/23筆柿あかみそドレッシング他(その2売店編)
・2015/03/12大薯(ダイジョ)と青島みかん(その1 直売所編)
・2015/01/16道の駅 紀伊長島まんぼう・マンボウ(三重県)
・2015/01/16三浦パーキングエリア始神(はじかみ)テラス(三重県)
・2014/09/02道の駅河芸(三重県)
・2014/06/21長良川あゆパーク(仮称)(岐阜県郡上市)
・2014/06/10道の駅 風のマルシェ 御前崎(静岡県御前崎市)
・2014/06/05道の駅 池田温泉(岐阜県揖斐郡)
・2014/05/03民話の駅 蘇民(三重県伊勢市二見町)
・2014/02/04海の駅 黒潮ダイニング相差店(三重県鳥羽市)
・2014/01/17道の駅紀伊長島まんぼう・マンボウ(三重県紀北町)
・2013/12/10道の駅瀬戸しなの(愛知県瀬戸市)再訪問
・2013/11/12道の駅塩津街道あぢかまの里(滋賀県)
・2013/07/25道の駅 むげ川(岐阜県関市武芸川町)
・2013/06/04道の駅どんぐりの里いなぶ(愛知県豊田市)
・2013/03/20道の駅 せせらぎの里 甲良(滋賀県犬上郡)
・2013/02/05道の駅 田原めっくんはうす(愛知県田原市)
・2013/02/05道の駅 あかばねロコステーション(愛知県田原市)
・2013/02/02道の駅 伊勢本街道御杖(奈良県宇陀郡)
・2013/02/01道の駅 美杉(三重県津市)
・2013/01/23道の駅 紀伊長島まんぼう(三重県紀北町)
・2013/01/03道の駅飛騨金山ぬく森の里温泉 かれん(下呂市)
・2013/01/03道の駅 和良(岐阜県郡上市)
・2012/12/20道の駅 花街道付知(岐阜県中津川市)
・2012/12/08道の駅 藤川宿(愛知県岡崎市)
・2012/11/17道の駅[宙] スカイドーム神岡(岐阜県飛騨市)その3
・2012/11/16道の駅[宙] スカイドーム神岡(岐阜県飛騨市)その2
・2012/11/15道の駅[宙] スカイドーム神岡(岐阜県飛騨市)その1
・2012/11/08道の駅 飛騨古川いぶし(岐阜県飛騨市)
・2012/11/08道の駅アルプ飛騨古川(岐阜県飛騨市)
・2012/11/08道の駅ななもり清見(岐阜県高山市)
・2012/10/29道の駅 美濃にわか茶屋(岐阜県美濃市)
・2012/07/01道の駅 鳳来三河三石(愛知県新城市)
・2012/06/23道の駅湧水の郷しおや(栃木県塩谷郡)
・2012/06/02道の駅 まんぼう(三重県紀北町)
・2012/05/12道の駅 なち(和歌山県那智勝浦町)
・2011/11/26道の駅きりら坂下(岐阜県中津川市)
・2011/10/10道の駅 紀伊長島マンボウ(三重県紀北町)
・2011/10/10道の駅 木つつ木館(三重県大紀町)
・2011/10/10道の駅 海山 海山物産(三重県紀北町)
・2011/10/10道の駅 紀の国 (三重県熊野市)
・2011/10/10道の駅 奥伊勢おおだい(三重県大台町)
・2011/05/28道の駅木つつ木館(三重県大紀町)
・2011/04/30道の駅マルメロの駅ながと(長野県長和町)
・2011/04/03道の駅 クレール平田(岐阜県海津市)
・2011/04/02道の駅 瀬戸しなの(愛知県瀬戸市)
・2010/07/24道の駅 熊野きのくに(三重県熊野市)
・2010/07/10道の駅 半布里の郷 とみか(岐阜県加茂郡)
・2010/06/05道の駅とうじょう (兵庫県加東市)
・2010/05/01道の駅舞鶴港とれとれセンター(京都府舞鶴市)
・2010/02/21道の駅 富有柿の里いとぬき(岐阜県本巣市)
・2010/02/21道の駅 織部の里もとす(岐阜県本巣市)
・2009/12/29道の駅伊勢志摩(三重県志摩市)
・2009/12/13道の駅 宇陀路 室生(奈良県桜井市)
・2009/12/26道の駅 吉野路大淀i センター(奈良県吉野郡)
・2009/11/28道の駅熊野きのくに(三重県熊野市)
・2009/06/09道の駅天城越(静岡県伊豆市)
・2009/04/14道の駅近江 母の郷(滋賀県米原市)
・2009/02/22道の駅 柳津(やないづ)(岐阜市)
・2008/11/06道の駅 紀の国(三重県熊野市)
・2008/10/25道の駅マンボウ(三重県紀北町)
・2008/10/25道の駅木つつき館(三重県大紀町)























